2012 wurden der Flächennutzungsplan und der Bebauugsplan geändert, um die 1800 qm große KiTa errichten zu können.
Möglich wurde dies, indem die vorgesehen Flächen für die KiTa aus dem B-plan 1993 und die Fläche des Gemeindehauses zusammengeführt wurden.
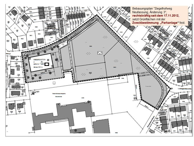
Als Ausgleichs-Grünfläche wurde die Wiese an der Mannheimer/Ecke Ludwigshafener Straße festgesetzt. Sogar mit Zweckbestimmung "Parkanlage".

Welches Bild einer Parkanlage haben Sie vor Augen?

 

Die "Struktur-und Genehmigungsdirektion Süd Rheinland-Pfalz" hat der größeren KiTa-Baufläche zugestimmt, da der Ausgleich an Grünflächen geschaffen werden konnte; ".. doch die Entwicklung einer Baufläche  aus einer im Flächennutzungsplan dargestellten Grünfläche erscheint fragwürdig". 

 

Vergessen, lieber Stadtrat?